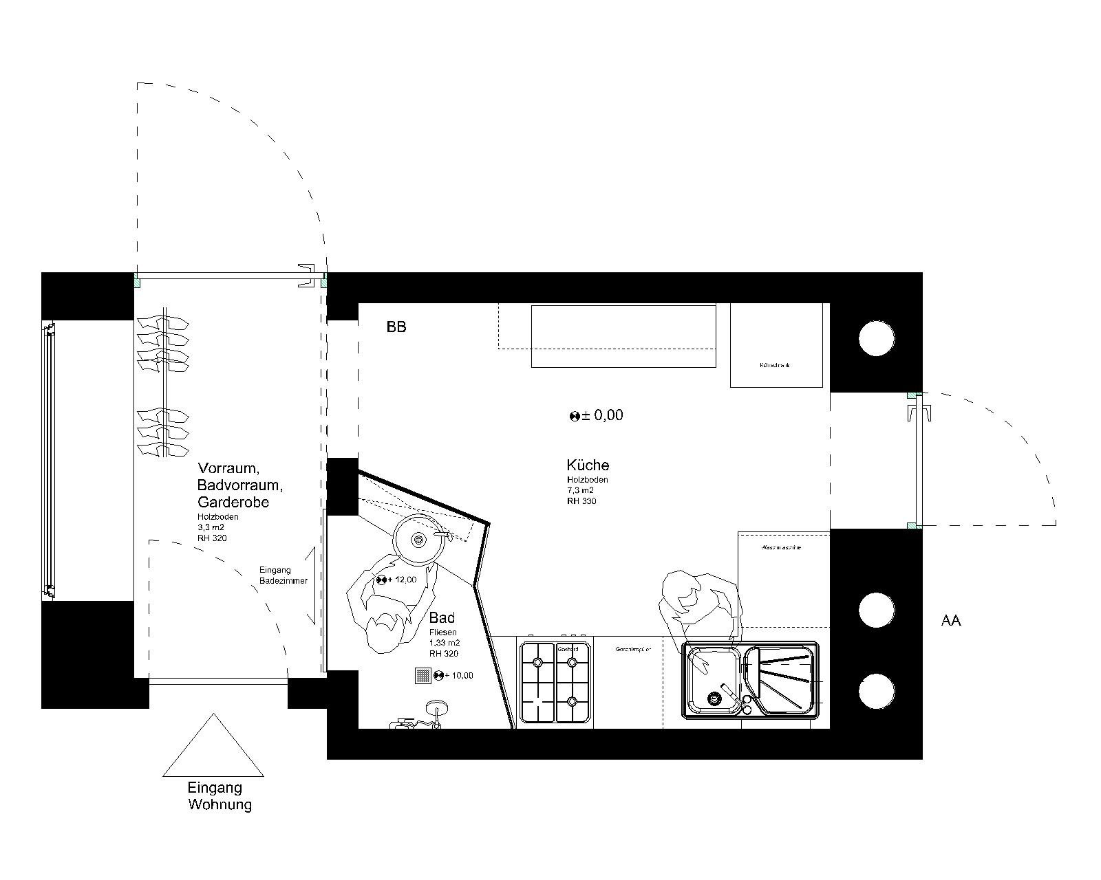
Badezimmer, Küche, Garderobe / Mikrowohnung

Drei Funktionen auf 12m² Raum: Küche, Badezimmer, Garderobe.

Auftraggeber: Privat
Kategorie: Innenarchitektur und Möbelbau

Konzept: Handgedacht
Umsetzung: Handgedacht
Material: Betonschalungsplatten gelb und Braun, Seekiefer, Drahtgitterglas, Fliesen, Eichenboden

Handgedacht © 2016, all rights reserved